Schloß Holte-Stukenbrock

Hochwertiges Core-Investment in wirtschaftsstarker Lage von Schloß Holte-Stukenbrock

Objektart: Zins und Renditeobjekt
Vermarktungsart: Kauf
Ort: Schloß Holte-Stukenbrock
Grundstücksgröße: ca. 10.316 m²
Kaufpreis: 8.199.000,00 €
Objekttyp: Industrieanlagen
PLZ: 33758
ImmoNr: 00-1265
Nutzfläche: ca. 5.764 m²
Energieausweis: liegt zur Besichtigung vor


Lage

NRW - Kreis Gütersloh - Schloß Holte Stukenbrock - Gewerbepark Senne

Ostwestfalen-Lippe zählt laut der Stockholm School of Economics zu den stärksten Wirtschaftsregionen Europas – ein Industriestandort mit hoher Innovationskraft, stabilen Strukturen und hervorragenden Investitionschancen.

Über 400 Unternehmen aus Maschinenbau, Elektro- und Automobilzulieferindustrie beschäftigen rund 80.000 Fachkräfte und erwirtschaften 16,5 Milliarden Euro Umsatz. Familiengeführte Mittelständler und Weltmarktführer wie Miele, Hella, Claas oder Beckhoff prägen die Dynamik der Region.

Investoren profitieren von einer exzellenten Infrastruktur mit direkter Anbindung an Autobahnen, Bahn- und Logistikzentren, leistungsfähigen Gewerbeflächen und internationalen Flughäfen in näherer Umgebung. Hochschulen in Bielefeld, Paderborn und Lemgo sichern den Fachkräftebedarf und fördern den Technologietransfer.

Ein ausgewogener Branchenmix aus Industrie, Ernährung, Kunststoff- und Möbelwirtschaft macht den Standort besonders krisenfest. Acht Brancheninitiativen vernetzen Wirtschaft, Forschung und Start-ups – ideale Voraussetzungen für Wachstum, Innovation und nachhaltige Rendite.

Ostwestfalen-Lippe: stark, verlässlich und zukunftsorientiert – einer der attraktivsten Investitionsstandorte Deutschlands.

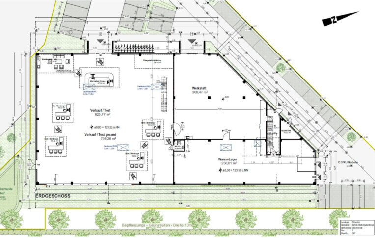
Beschreibung

Der Gewerbepark Senne in Schloss Holte-Stukenbrock bietet eine seltene Gelegenheit für Kapitalanleger: Zwei hochwertig ausgestattete, langfristig vermietete Liegenschaften mit stabilen Erträgen und modernen Nutzungskonzepten.

Die erste Einheit ist an einen etablierten Fahrradhändler vermietet, der seine bisherigen Standorte zu einem zentralen, großzügigen Standort zusammengeführt hat. Die Fläche verfügt über eine große Ausstellungsfläche, moderne Büroräume, eine eigene Werkstatt sowie funktionale Infrastruktur für den Einzelhandel.

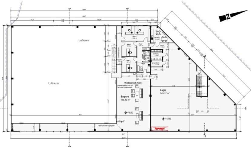
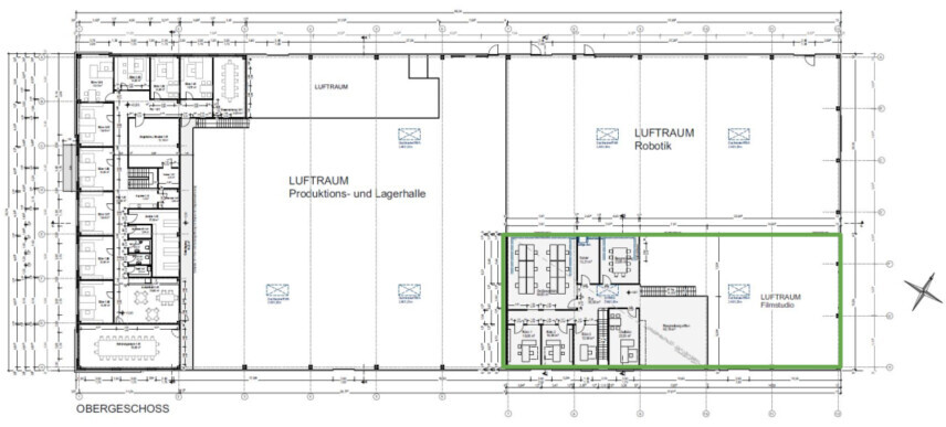
Die zweite Liegenschaft ist vielseitig nutzbar und beherbergt auf der vorderen Fläche ein Unternehmen aus dem Bereich Automatisierungs- und Fertigungstechnik, auf der hinteren Fläche eine innovative Marketingagentur mit Flächen für kreative Arbeitsprozesse sowie Foto- und Filmproduktionen. Alle Bereiche – Produktions-, Büro- und Kreativflächen – sind technisch auf dem neuesten Stand, hell gestaltet und flexibel nutzbar. Eine auf dem Dach installierte Photovoltaikanlage unterstreicht die nachhaltige Ausrichtung der Immobilie.

Beide Liegenschaften sind langfristig vermietet, sichern stabile Mieteinnahmen und bieten eine hohe Planungssicherheit. Der Gewerbepark ist vollständig erschlossen, bebaut und modern ausgestattet, was die Core-Investment-Qualität zusätzlich unterstreicht.

Diese Kombination aus modernen, voll vermieteten Gewerbeflächen, etablierten Mietern und attraktiver Lage macht den Gewerbepark zu einer idealen Core-Investment-Gelegenheit für Kapitalanleger, die langfristige, verlässliche Erträge suchen.



- Neubau nach GEG 2020 EE 40
- KFW Förderkredit vorhanden
- Mietbeginn: Q1 2025
- Laufzeit Mietvertrag: 8, 12 und 13 Jahre + Option
- VPI-Indexierung: 2 Jahre nach Mietbeginn, Schwellenwert 7 %

Technische Ausstattung
- 4 Lichtkuppeln (RWAs, ca. 120x240 cm, mit integrierten RWA-Öffnungen)
- Lichtbänder mit integrierten RWA-Öffnungen
- ISO-Wandpaneele, ca. 12 cm stark, innen RAL 9002, außen RAL 7016
- Halle aus Stahlbetonfertigteilen mit ISO-Wandpaneelen
- Große Glasfassade
- Dreifach verglaste Dreh-Kipp-Fenster aus Kunststoff, innen weiß, außen RAL 7016
- RWA nach Brandschutzverordnung
- Elektrisch bedienbare Raffstores an Süd-, Ost- und Westseite
- Alle Räume (außer Sanitärräume) mit Klimasplitgeräten zum Heizen oder Kühlen
- Warmwasser über Durchlauferhitzer
- Glasfaseranschluss
- Gepflasterte Außenanlagen für Stellplätze
- zahlreiche Parkplätze und eine E-Ladestation
- Sektionaltore
Art:
liegt zur Besichtigung vor
Gültig bis:
z. Zt. keine Daten vorhanden
Endenergieverbrauch:
z. Zt. keine Daten vorhanden
Baujahr lt. Energieausweis
z. Zt. keine Daten vorhanden
Wesentlicher Energieträger
z. Zt. keine Daten vorhanden
Klasse
z. Zt. keine Daten vorhanden
Für die Richtigkeit und Vollständigkeit des Objekts und der Objektangaben kann keine Gewähr übernommen werden. Irrtum und Zwischenverkauf vorbehalten.

Die Käuferprovision beträgt 3,57% inkl. Mehrwertsteuer und ist vom Käufer auf den notariell beglaubigten Kaufpreis an die Immobilien Nagel GmbH zu zahlen.

Weitere Informationen zu diesem und weiteren spannenden Projekten finden Sie auf unserer Homepage unter https://www.immobilien-nagel.de

Auch Sie benötigen Unterstützung bei Ihrem Projekt?
Wir entwickeln gemeinsam mit Ihnen das passende Konzept und finden die richtige Lösung für Ihre Immobilie - Garantiert!

Immobilien Nagel GmbH
Frau Amrei E. Rieso
Leitung Operations
0160-3044433

Sprechen Sie uns an, wir beraten Sie gerne!
Contact person
  • Amrei Rieso
  • Amrei Rieso
  • Tel: +49 160 304 44 33

 * Ich bin mit den Datenschutz- bestimmungen einverstanden.




More Estates like this

Extertal
Provisionsfrei! - attraktives Baugrundstück in zentraler und familienfreundlicher Lage von Extertal
Lage Kaufpreis
Extertal 105.000,00 €
Objekt Nr. Objektart
00-600 -
Objekttyp Nutzfläche
- -
Löhne
Substanzstarkes Investment mit jahrzehntelanger Standorthistorie und Nutzungsperspektive!
Lage Kaufpreis
Löhne 2.179.000,00 €
Objekt Nr. Objektart
00-651 -
Objekttyp Nutzfläche
- ca. 4.109 m²

Unsere Kundenzufriedenheit ist uns wichtig