Detmold

Wo Detmold flaniert, entdeckt und shoppt - Ihre Fläche mitten in der Innenstadt!

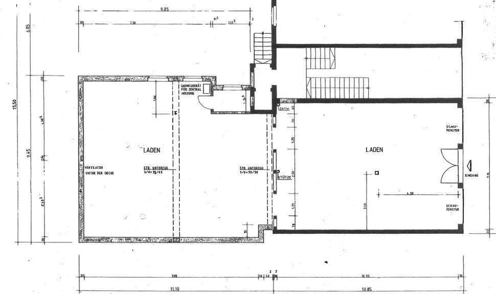
Objektart: Laden/Einzelhandel
Vermarktungsart: Miete
Ort: Detmold
Nutzfläche: ca. 160 m²
Objekttyp: Einzelhandelsladen
PLZ: 32756
ImmoNr: 00-1272
Energieausweis: liegt zur Besichtigung vor


Lage

Die Immobilie befindet sich in zentraler Innenstadtlage von Detmold – einer der beliebtesten Einkaufs- und Flaniermeilen der Stadt. Hier vereinen sich Tradition und lebendige Urbanität: historische Fassaden, attraktive Einzelhandelsgeschäfte und moderne Dienstleister prägen das Stadtbild.

Durch die ausgezeichnete Lage profitiert die Fläche von einer hohen Passantenfrequenz und einer sehr guten Sichtbarkeit. In unmittelbarer Umgebung befinden sich zahlreiche Filialisten, Boutiquen, Cafés und Restaurants, die zur Belebung des Umfelds beitragen. Öffentliche Verkehrsmittel sowie Parkmöglichkeiten sind fußläufig erreichbar, was den Standort sowohl für Kunden als auch Mitarbeitende optimal zugänglich macht.

Detmold selbst gilt als wirtschaftliches und kulturelles Zentrum der Region Lippe – mit einer charmanten Altstadt, einem vielseitigen Branchenmix und einer hohen Aufenthaltsqualität.

Beschreibung

Die zur Vermietung stehende Gewerbefläche befindet sich in attraktiver Innenstadtlage von Detmold und bietet ein äußerst repräsentatives Umfeld für vielfältige Nutzungsmöglichkeiten. Der großzügig geschnittene, offen gestaltete Raum wird durch die weitläufige Schaufensterfront hervorragend belichtet und präsentiert sich hell, freundlich und einladend.

Die Fläche zeichnet sich durch eine klare, moderne Architektur aus und lässt sich flexibel an unterschiedliche Nutzungskonzepte anpassen. Ob als Einzelhandelsfläche, Ausstellungsraum oder für Dienstleistungsanbieter wie Versicherungen, Krankenkassen oder Agenturen – hier finden Sie den passenden Rahmen für einen professionellen Auftritt in prominenter Lage.

Die Schaufensterfront bietet ausgezeichnete Möglichkeiten zur Warenpräsentation oder zur werbewirksamen Außendarstellung Ihres Unternehmens. Durch die großzügige Raumhöhe und die angenehme Lichtstimmung entsteht ein repräsentatives Ambiente, das sowohl Kunden als auch Mitarbeitende anspricht.

Dank der zentralen Lage in der Langen Straße profitieren Sie zudem von einer hohen Passantenfrequenz und der unmittelbaren Nähe zu weiteren etablierten Einzelhandels- und Dienstleistungsanbietern.



Gesamtfläche: ca. 160m²
Beleuchtung: sehr gut, Rasterdecke
Ausstattung: individuell, aktuell Ladeneinrichtung DOB
Abstellraum mit Küchenzeile
zeitgemäße sanitäre Anlage
sehr gute Sichtbarkeit im Zentrum von Detmold, Fußgängerzone
Parkhaus in ca. 100 Meter Entfernung

kurzfristig zu beziehen!
Art:
liegt zur Besichtigung vor
Gültig bis:
z. Zt. keine Daten vorhanden
Endenergieverbrauch:
z. Zt. keine Daten vorhanden
Baujahr lt. Energieausweis
z. Zt. keine Daten vorhanden
Wesentlicher Energieträger
z. Zt. keine Daten vorhanden
Klasse
z. Zt. keine Daten vorhanden
Für die Richtigkeit und Vollständigkeit des Objektes und der Objektangaben kann keine Gewähr übernommen werden. Irrtum und Zwischenvermietung vorbehalten. Ein aktueller Energieausweis ist momentan in Bearbeitung.
Die Mieterprovision beträgt 2,38-Netto-Kaltmieten inkl. Mehrwertsteuer und ist vom Mieter bei Abschluss eines Mietvertrages an die Immobilien Nagel GmbH zu zahlen.

Weitere Informationen zu diesem und weiteren interessanten Immobilien finden Sie auf unserer Homepage unter www.immobilien-nagel.de oder direkt bei Ihrem persönlichen Berater: Frank Haseloh

Immobilien Nagel GmbH
Frank Haseloh
Dipl.- Ing. (FH)
Gutachter Immobilienbewertung (DEKRA)
Geschäftsführer
Frank.Haseloh@immobilien-nagel.de
mobil: +49 171 7678319
Contact person
  • Frank Haseloh
  • Frank Haseloh
  • Tel: +49 171 767 83 19

 * Ich bin mit den Datenschutz- bestimmungen einverstanden.




More Estates like this

Extertal
Provisionsfrei! - attraktives Baugrundstück in zentraler und familienfreundlicher Lage von Extertal
Lage Kaufpreis
Extertal 105.000,00 €
Objekt Nr. Objektart
00-600 -
Objekttyp Nutzfläche
- -
Löhne
Substanzstarkes Investment mit jahrzehntelanger Standorthistorie und Nutzungsperspektive!
Lage Kaufpreis
Löhne 2.179.000,00 €
Objekt Nr. Objektart
00-651 -
Objekttyp Nutzfläche
- ca. 4.109 m²

Unsere Kundenzufriedenheit ist uns wichtig