Bad Oeynhausen-Volmerdingsen

Gesundheit neu gedacht: Ihre Praxis in bester Gesellschaft im Zentrum von Volmerdingsen

Objektart: Büro/Praxen
Vermarktungsart: Miete
Ort: Bad Oeynhausen-Volmerdingsen
Grundstücksgröße: ca. 2.000 m²
Objekttyp: Praxisfläche
PLZ: 32549
ImmoNr: 00-1276
Nutzfläche: ca. 308 m²


Lage

Kreis Minden Lübbecke, Bad Oeynhausen, Volmerdingsen

Diese Immobilie befindet sich in einer ruhigen und zugleich hervorragend angebundenen Lage im Ortsteil Volmerdingsen, einem etablierten Bereich der Kurstadt Bad Oeynhausen.

Ein besonderer Standortvorteil ist die unmittelbare Nähe zum Wittekindshof, einer großen sozialen Einrichtung mit zahlreichen Wohnbereichen, Arbeitsstätten und Betreuungseinrichtungen. Dadurch befindet sich die Praxisfläche in einem Gebiet mit hohem Bedarf an medizinischen, therapeutischen und beratenden Angeboten. Einrichtungen und Mitarbeitende des Wittekindshofes sowie Angehörige und Besucher stellen ein stabiles und kontinuierliches Patienten beziehungsweise Kundenpotenzial dar, was für viele Fachrichtungen einen deutlichen Vorteil bedeutet.

Die Verkehrsanbindung ist ausgezeichnet. Über die Bundesstraßen B61 und B514 sowie die nahegelegenen Autobahnen A30 und A2 sind umliegende Städte wie Minden, Herford, Porta Westfalica und Bielefeld bequem erreichbar. Praktisch im Alltag: In etwa fünf Minuten ist die A30 erreicht, in rund zehn Minuten das Zentrum von Bad Oeynhausen. Auch der öffentliche Nahverkehr bietet eine zuverlässige Anbindung an das Stadtzentrum und die gesamte Region.

Beschreibung

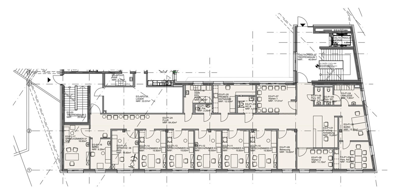
Im entstehenden Gesundheitszentrum Volmerdingsen steht im Erdgeschoss eine hochwertige, barrierefreie Praxisfläche mit rund 308 m² Nutzfläche zur Verfügung. Die Räume bieten ein professionelles, freundliches Umfeld und eignen sich ideal für medizinische und therapeutische Anbieter, die Wert auf Qualität, Vernetzung und ein angenehmes Arbeitsklima legen.

Im Gesundheitszentrum sollen perspektivisch eine Apotheke, Praxen für Physiotherapie, Ergotherapie und Logopädie, ein ambulanter Pflegedienst sowie ein Institut für Gesundheit und Beratung angesiedelt werden. Diese geplante Struktur schafft wertvolle Synergien, kurze Wege und ein großes Patientenpotenzial direkt vor Ort.

Die Praxisfläche selbst überzeugt durch einen durchdachten Grundriss mit Wartezimmern, Aufenthaltsbereichen sowie komfortablen, modernen Sanitäranlagen für Patienten und Team. Das Gebäude wird vollständig barrierefrei erschlossen, ein Aufzug ist vorgesehen. Vor dem Objekt sind zahlreiche Parkmöglichkeiten für Patienten geplant.

Das Energiekonzept ist zukunftsorientiert ausgelegt. Beheizt wird die Immobilie über eine Wärmepumpe in Kombination mit Photovoltaikanlage und hochwärmegedämmter Gebäudehülle. Dies gewährleistet einen effizienten und nachhaltigen Betrieb, senkt die Betriebskosten und sorgt zugleich für ein angenehmes Raumklima.

Die Fläche eignet sich besonders für Allgemeinmediziner, Fachärzte, Heilpraktiker sowie Anbieter von Heil und Hilfsmittelbedarf. Eine Teilanmietung ist möglich, ebenso die Nutzung als Gemeinschaftspraxis mit mehreren Partnern.

Die Übergabe der Praxisfläche ist für Juni beziehungsweise Juli 2026 geplant. Ab diesem Zeitpunkt steht die Einheit bezugsbereit zur Verfügung.



- Gesamtfläche: 308 m²

- Barrierefreier Zugang

- 7 Sprechzimmer

- 2 Wartezimmer

- Empfangsbereich

- Büro

- Labor

- Lagerraum

- Umkleide

- Aufenthaltsraum

- WCs für Mitarbeitende

- Separate WCs für Patienten

- Patientenparkplätze direkt vor der Tür
z. Zt. keine Daten vorhanden
Für die Richtigkeit und Vollständigkeit des Objekts und der Objektangaben kann keine Gewähr übernommen werden.
Die Provision in Höhe von 2,975 Nettokaltmieten inkl. 19% MwSt. sind bei Abschluss eines Mietvertrages fällig und vom Mieter an die Immobilien Nagel GmbH zu zahlen.

Weitere Informationen zu diesem und weiteren spannenden Projekten finden Sie auf unserer Homepage unter: www.immobilien-nagel.de oder direkt bei Ihrem persönlichen Betreuer Maurice Meisner: +49 160 5494058

Auch Sie benötigen Unterstützung bei Ihrem Projekt?
Wir entwickeln gemeinsam mit Ihnen das passende Konzept und finden die richtige Lösung für Ihre Immobilie - Garantiert!

Immobilien Nagel GmbH
Maurice Meisner
Sales Manager
maurice.meisner@immobilien-nagel.de
mobil: +49 160 5494058
Contact person
  • Maurice Meisner
  • Maurice Meisner
  • Tel: +49 160 5494058

 * Ich bin mit den Datenschutz- bestimmungen einverstanden.




More Estates like this

Preussisch Oldendorf
Attraktives und vielseitig nutzbares Gewerbegrundstück in Pr. Oldendorf Getmold, BauNVO GE - Gewerbe
Lage Kaufpreis
Preussisch Oldendorf Preis auf Anfrage
Objekt Nr. Objektart
00-537 -
Objekttyp Nutzfläche
- -
Extertal
Provisionsfrei! - attraktives Baugrundstück in zentraler und familienfreundlicher Lage von Extertal
Lage Kaufpreis
Extertal 105.000,00 €
Objekt Nr. Objektart
00-600 -
Objekttyp Nutzfläche
- -

Unsere Kundenzufriedenheit ist uns wichtig