Bad Oeynhausen-Volmerdingsen

Praxis mit Perspektive: Moderne Gesundheitsadresse im Zentrum von Volmerdingsen

Objektart: Büro/Praxen
Vermarktungsart: Miete
Ort: Bad Oeynhausen-Volmerdingsen
Grundstücksgröße: ca. 2.000 m²
Objekttyp: Praxisfläche
PLZ: 32549
ImmoNr: 00-1281
Nutzfläche: ca. 253 m²


Lage

Kreis Minden Lübbecke, Bad Oeynhausen, Volmerdingsen

Diese Immobilie befindet sich in einer ruhigen und zugleich hervorragend angebundenen Lage im Ortsteil Volmerdingsen, einem etablierten Bereich der Kurstadt Bad Oeynhausen.

Ein besonderer Standortvorteil ist die unmittelbare Nähe zum Wittekindshof, einer großen sozialen Einrichtung mit zahlreichen Wohnbereichen, Arbeitsstätten und Betreuungseinrichtungen. Dadurch befindet sich die Praxisfläche in einem Gebiet mit hohem Bedarf an medizinischen, therapeutischen und beratenden Angeboten. Einrichtungen und Mitarbeitende des Wittekindshofes sowie Angehörige und Besucher stellen ein stabiles und kontinuierliches Patienten beziehungsweise Kundenpotenzial dar, was für viele Fachrichtungen einen deutlichen Vorteil bedeutet.

Die Verkehrsanbindung ist ausgezeichnet. Über die Bundesstraßen B61 und B514 sowie die nahegelegenen Autobahnen A30 und A2 sind umliegende Städte wie Minden, Herford, Porta Westfalica und Bielefeld bequem erreichbar. Praktisch im Alltag: In etwa fünf Minuten ist die A30 erreicht, in rund zehn Minuten das Zentrum von Bad Oeynhausen. Auch der öffentliche Nahverkehr bietet eine zuverlässige Anbindung an das Stadtzentrum und die gesamte Region.

Beschreibung

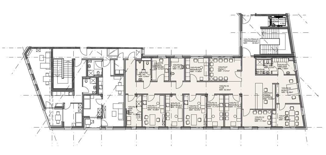
Im Obergeschoss des neu entstehenden Gesundheitszentrums in Volmerdingsen erwartet Sie eine moderne, barrierefreie Praxisfläche mit rund 253 m² Nutzfläche. Die Räume lassen sich flexibel gestalten und bieten ideale Voraussetzungen für einen professionellen und zugleich angenehmen Praxisalltag.

Geplant ist ein vielseitiger Gesundheitsstandort, an dem unter anderem eine Apotheke, Praxen für Physio-, Ergo- und Logopädie, ein ambulanter Pflegedienst sowie ein Institut für Gesundheit und Beratung zusammenkommen. Diese Bündelung verschiedener Angebote sorgt für kurze Wege, eine enge fachliche Zusammenarbeit und ein breites Patientenpotenzial direkt am Standort.

Die Praxisfläche selbst lässt sich mit gut nutzbaren Behandlungs- und Büroräumen, freundlichen Wartezonen und Aufenthaltsbereichen sowie zeitgemäßen Sanitäranlagen für Patienten und Team realisieren. Das Gebäude wird vollständig barrierefrei geplant, inklusive Aufzug. Auf dem Grundstück sind zahlreiche Stellplätze für Patienten vorgesehen.

Besonders attraktiv ist das nachhaltige Energiekonzept. Die Immobilie erhält eine Wärmepumpe in Kombination mit Photovoltaikanlage und einer hochwertig gedämmten Gebäudehülle. Dies gewährleistet einen effizienten und nachhaltigen Betrieb, senkt die Betriebskosten und sorgt zugleich für ein angenehmes Raumklima.

Die Fläche richtet sich insbesondere an Allgemeinmediziner, Fachärzte, Heilpraktiker sowie Anbieter von Heil- und Hilfsmitteln. Sowohl eine Teilanmietung als auch die Einrichtung einer Gemeinschaftspraxis mehrerer Partner sind möglich.

Die Fertigstellung und Übergabe der Praxisfläche ist für Juni oder Juli 2026 geplant. Ab diesem Zeitpunkt kann die Einheit bezogen und individuell ausgestattet werden.



- Gesamtfläche: 253 m²

- Barrierefreier Zugang

- 6 Sprechzimmer

- 2 Wartezimmer

- Empfangsbereich

- Büro

- Labor

- Umkleide

- Aufenthaltsraum

- WCs für Mitarbeitende

- Separate WCs für Patienten

- Patientenparkplätze direkt vor der Tür
z. Zt. keine Daten vorhanden
Für die Richtigkeit und Vollständigkeit des Objekts und der Objektangaben kann keine Gewähr übernommen werden.
Die Provision in Höhe von 2,975 Nettokaltmieten inkl. 19% MwSt. sind bei Abschluss eines Mietvertrages fällig und vom Mieter an die Immobilien Nagel GmbH zu zahlen.

Weitere Informationen zu diesem und weiteren spannenden Projekten finden Sie auf unserer Homepage unter: www.immobilien-nagel.de oder direkt bei Ihrem persönlichen Betreuer Maurice Meisner: +49 160 5494058

Auch Sie benötigen Unterstützung bei Ihrem Projekt?
Wir entwickeln gemeinsam mit Ihnen das passende Konzept und finden die richtige Lösung für Ihre Immobilie - Garantiert!

Immobilien Nagel GmbH
Maurice Meisner
Sales Manager
maurice.meisner@immobilien-nagel.de
mobil: +49 160 5494058
Contact person
  • Maurice Meisner
  • Maurice Meisner
  • Tel: +49 160 5494058

 * Ich bin mit den Datenschutz- bestimmungen einverstanden.




More Estates like this

Preussisch Oldendorf
Attraktives und vielseitig nutzbares Gewerbegrundstück in Pr. Oldendorf Getmold, BauNVO GE - Gewerbe
Lage Kaufpreis
Preussisch Oldendorf Preis auf Anfrage
Objekt Nr. Objektart
00-537 -
Objekttyp Nutzfläche
- -
Extertal
Provisionsfrei! - attraktives Baugrundstück in zentraler und familienfreundlicher Lage von Extertal
Lage Kaufpreis
Extertal 105.000,00 €
Objekt Nr. Objektart
00-600 -
Objekttyp Nutzfläche
- -

Unsere Kundenzufriedenheit ist uns wichtig